Comfort Meets Boldness: A Luxury Basement Renovation in Carmel, IN

Signature Design and Renovation

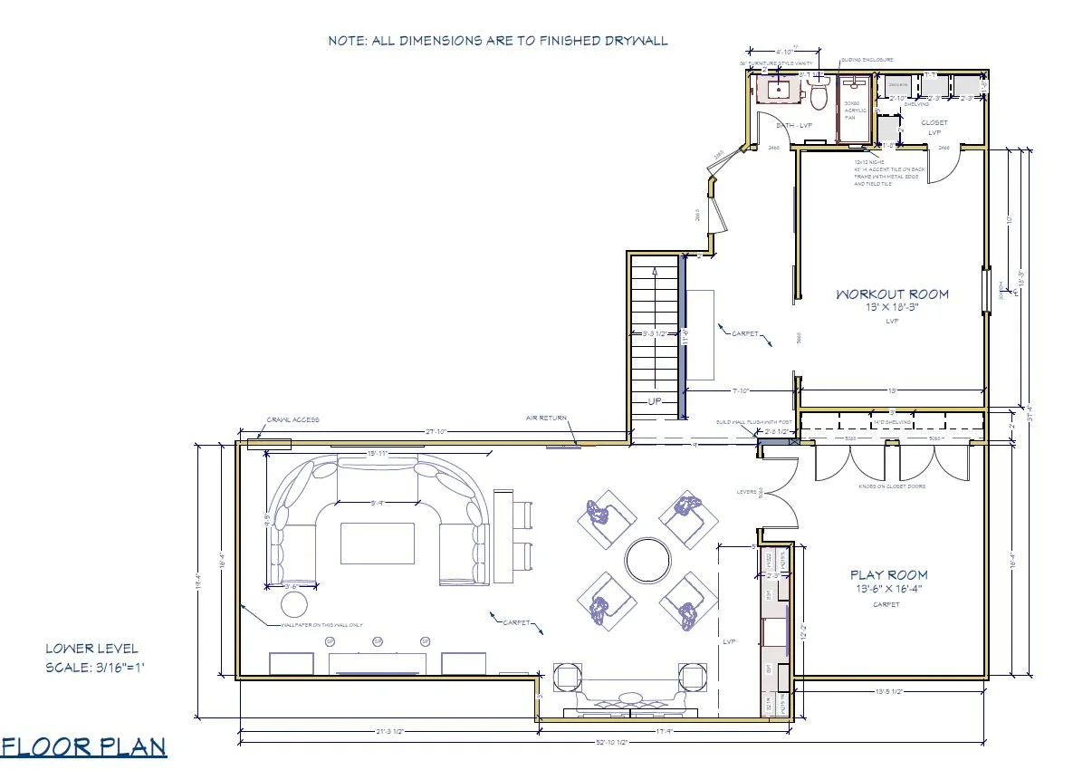
This luxury basement renovation in Carmel , Indiana is a curated and flawlessly executed blend of bold features and elevated comfort. Signature tile selections, statement wall accents, color drenched bold colors and modern barn doors define the space with sophisticated character. The bar is a mixologists haven with everything at your fingertips. The adjacent theater area offer endless function for family living, complete with a generous curved sectional. A cozy reading nook provides a quiet retreat, appointed with ample lighting. A dedicated fitness area was designed for daily use and behind featured barn doors. A fully refreshed bath finishes the space. With thoughtful flow throughout, this remodeled basement becomes a true extension of the home’s refined style and livability.

Learn More
Previous
Previous

GALLUP - A Curated Gathering Space: Luxury Basement Remodel in Zionsville, IN

Next
Next

HOBSON - Bespoke Design: A Greenwood Custom Home Build for Bespoke Living