Title

Signature Design and Renovation

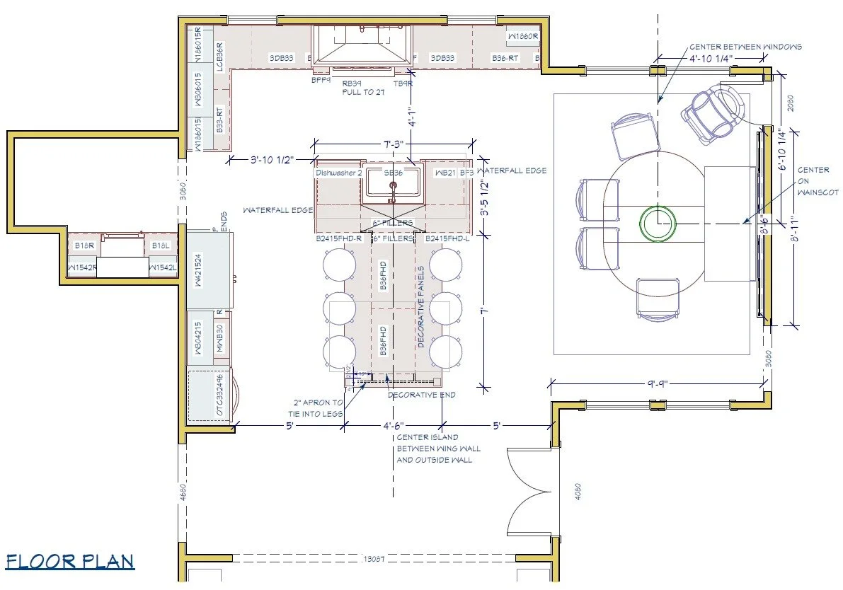
This custom kitchen Carmel, IN renovation embodies our signature concept-to-completion service for luxury clients who expect exceptional design, top-tier craftsmanship, and seamless project management. The redesign centered on unifying the space by replacing twin islands with a one-of-a-kind custom island that offers seating for six and a dual-purpose dining table. A striking custom zinc-and-brass range hood becomes the sculptural focal point, anchoring the kitchen with artisan detail. High function continues into the adjacent Butlers Pantry with beverage center service and LED lit floating shelving. Warm whites and charcoal blues color palette pair beautifully with natural light hardwood floors, while carefully selected furnishings and décor complete the design, creating a cohesive, inviting, and elevated living space.

Learn More
Previous
Previous

FLINT DRAFT NICHOLS KITCHEN