A Marvel in Marble: A Luxury Bathroom Renovation in Brownsburg

Brownsburg, IN

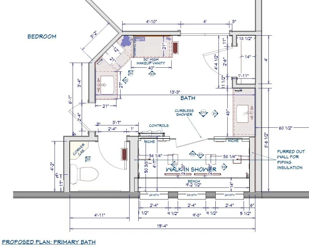
Signature Design and Renovation

This Brownsburg, IN primary bath was completely transformed into a modern luxury spa retreat. Kohler plumbing fixtures elevate the space, while dual his-and-her showering experiences feature body sprays, rain heads, handhelds, and wall-mount options for fully customizable comfort. Large-format porcelain flooring flows seamlessly into the shower, creating a cohesive and expansive feel. Custom stained-wood cabinetry and separate vanities add warmth and tailored function. Designed and remodeled by Everything Home Design, this turnkey luxury renovation delivers a truly elevated everyday experience.

Learn more
Previous
Previous

Traditional Meets Modern: An Elegant Bathroom and Kitchen Renovation in Zionsville

Next
Next

Sophistication in Harmony: A Bespoke Kitchen and Bathroom Renovation in Carmel